欢迎光临 [ 国产偷精品视频 ] 官方网站! 网站首页      |     联系我们

滗水器

产品列表
刮吸泥机系列

ZCG型中心传动刮泥机

概述
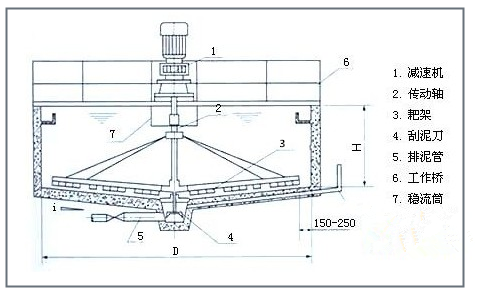
       该系列刮泥机结构简单,整台刮泥机的载荷都作用在工作桥架的中心,由中心驱动机构带动刮集装置旋转,顶向刮板将沉淀池底的污泥刮集到中心集泥槽中,靠静水压力从污泥槽中排出。该机用于池径较小的辐流式沉淀池。

性能特点
       1、结构简单,操作方便、刮泥效率高。
       2、设置电气过载保护装置。
       3、可选择使用提升装置,分为手动与电动。

技术参数
型号 池径D
(m)
池深
(m)
周边线速度
(m/min)
驱动功率
(KW)
钢结构重量
(kg)
ZCG3 3 3 1~2 0.37 2500
ZCG4 4 3.5 1~2 0.37 3200
ZCG5 5 4 1~2 0.37 3800
ZCG6 6 4 1~2 0.37 4000
ZCG8 8 4.5 1~2 0.55 5000
ZCG10 10 4.5 1.5~2.5 0.55 6000
ZCG12 12 5 1.5~2.5 0.55 6800
ZCG14 14 5 2~3 0.75 7600
ZCG16 16 5 2~3 0.75 8300
ZCG18 18 5 2~3 0.75 9100

外形示意图
控制系统
  控制系统为用户选用或自备,在现场接入电源即可使用。
  现场电控箱上采用就地启停控制按钮,现场电控箱上设有设备的启动、停机按钮及启动、停机、事故信号灯。为节省能耗,所有信号灯都采用节能型,在电控箱内设有电动机保护器。控制柜可设PLC远程控制接口。本电控箱采用碳钢防腐或不锈钢外壳,室外防雨。

订货所需参数
        1、刮泥机直径      2、材质要求
展开
国产偷精品视频/更新/2026/今日更新